Regeneración del borde litoral en la Ensenada de Santa Lucia

Problemática

Plano de localización

La Demarcación de Costas y el Concello de Mugardos pretenden la regeneración del borde litoral de la ensenada de Santa Lucía, en el término municipal de Mugardos, en la provincia de A Coruña. Acondicionamiento del acceso en rampa a la ensenada, con el fin de posibilitar el uso y disfrute del Dominio Público Marítimo Terrestre (DPMT) por la población.

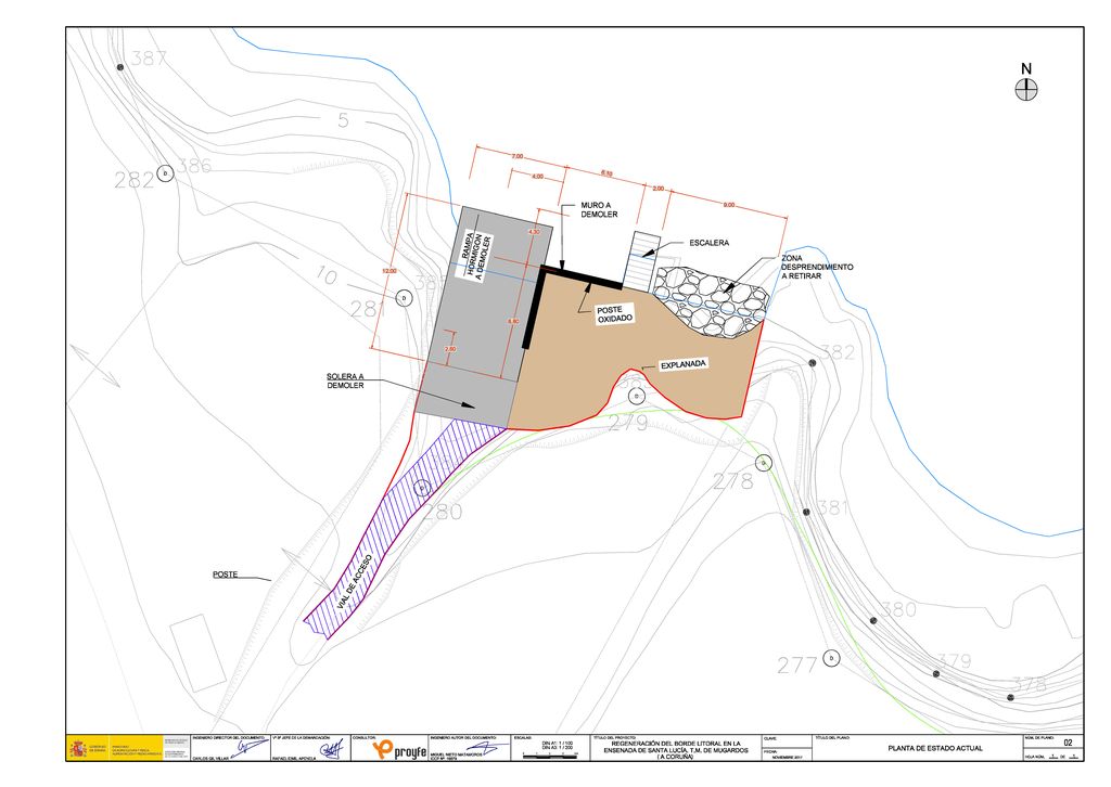
Plano de planta estado inicial
La ensenada de Santa Lucía, está sufriendo procesos de regresión de la costa debido a la acción erosiva del mar y la escorrentía superficial, provocando inestabilidad de los taludes del borde costero y generando situaciones de peligrosidad, tanto para los usuarios como para los terrenos y edificaciones de la parte alta de los taludes.
Las deficiencias que se observan, son las siguientes:

  • Deficiente estado de conservación del antiguo muelle y embarcadero.
  • Derrumbe pretil de hormigón por erosión del mar.
  • Mal estado de los taludes laterales del acceso así como de la pequeña zona de descanso, debido a la erosión ocasionada por las aguas de escorrentía.

Actuaciones

Planta de actuaciones

Los objetivos de la solución a adoptar serán:


  • Contribuir a la mejora de la estabilidad de la zona y sus taludes colindantes.
  • Favorecer la recuperación de la Servidumbre de Tránsito.
  • Mejorar la accesibilidad a la costa.
  • Conservación y potenciación de la biodiversidad.
Plano de detalles
La intervención consistirá en demoler y retirar los materiales afectados, rehacer las escolleras de protección, estabilizar los taludes colindantes, y dotar el área de un acceso al mar y zona de descanso, con pavimentación de granito y mobiliario urbano.

También se realizará una limpieza de la zona intermareal.

 

Situación: Terminada (2018)

Plazo: 3 meses

Inversión: 39.814,00 €

Coordenadas: 560657.71 m E,  4812326.43 m N (29 T)

Galería de imágenes

Haga click sobre la imagen para ver la galería del proyecto a tamaño completo:

Pinche sobre la foto para acceder a la galería del proyecto

 

Accesos directos