Acondicionamiento del borde litoral en San José - fase II

Problemática

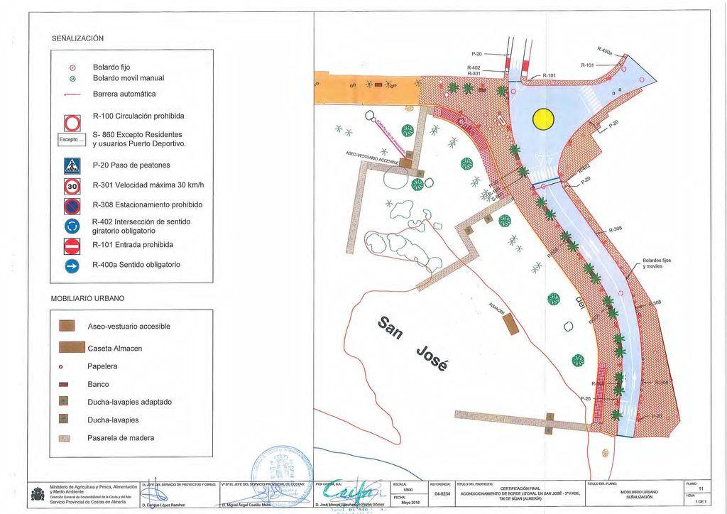
Plano de situación

Con fecha 6 de marzo de 2.000 se resuelve el contrato de la obras correspondientes al proyecto “Acondicionamiento de las playas del Parque Natural de Cabo de Gata – 1ª Fase – Acondicionamiento de Borde Litoral en San José, T.M. de Níjar (Almería), quedando pendiente de ejecutar el tramo final del proyecto.

El proyecto “ACONDICIONAMIENTO DE BORDE LITORAL EN SAN JOSÉ – 2ª FASE. T.M. NÍJAR (ALMERÍA)” se redacta por la necesidad de concluir las obras iniciadas en la 1ª fase de construcción y que posteriormente fueron paralizadas por la rescisión del correspondiente contrato. La importancia turística de la zona en estudio hace necesaria la remodelación de la zona de acceso al puerto y la ampliación del paseo y los servicios correspondientes.

Actuaciones

Plano de planta general

Prolongación del paseo marítimo peatonal.

La actuación principal ha consistido en la prolongación del paseo marítimo hasta la entrada al puerto de San José. El paseo marítimo tiene una anchura prácticamente constante de 7,5 m y pendiente transversal del 1.5 % hacia la playa, hasta alcanzar el muro de entrada al puerto, extendiéndose sobre una franja actualmente ocupada por setos y algunos ejemplares de palmito, que se han retirado y trasplantado. La longitud de la ampliación es de 136,28 m.  


Se ha proyectado un pavimento de adoquines de hormigón de color y dibujo igual al actual, asentados sobre una capa de nivelación de arena de 5 cm de espesor, y una capa de zahorra artificial de 25 cm. 


El límite exterior del nuevo paseo así como el del tramo ya construido queda definido por un pretil de mampostería careada elevado 50 cm por encima de la cota del paseo terminado. En el tramo de paseo actual se ha demolido parte del borde de piedra existente para conseguir una superficie de apoyo adecuada. El pretil se ha rematado en su cara superior por una albardilla de piezas prefabricadas de 5 cm de espesor y 55 cm de anchura. La evacuación de aguas se efectúa a través de mechinales colocados cada 5 m. 


Remodelación de la vía de acceso al puerto.

En la calle de acceso al puerto se ha demolido el firme existente y se ha construido una calzada de pavimento asfáltico de 5 cm de espesor, asentada sobre una base de zahorra de 20 cm de espesor. La pendiente transversal es del 1,5 % descendente hacia el paseo. La superficie de calzada resultante es de 1.470 m2.


En el área comprendida entre las fachadas de las edificaciones existentes y el límite interior de la calzada se ha creado una zona peatonal de anchura variable con un pavimento de características iguales a las del nuevo paseo. El pavimento de adoquín se coloca sobre una capa de arena de 5 cm de espesor asentado sobre una sub-base de zahorra artificial de 25 cm. La superficie peatonal es de unos 1.915 m2.


  • Accesos a la playa mediante rampas, para usuarios y máquinas de limpieza.
  • Redes de alumbrado público, abastecimiento de agua, riego y drenaje.
  • Dotación de jardinería y mobiliario urbano.
  • Perfilado de la playa.

 

Estado: Terminada (Septiembre, 2016) 

Plazo: 9 meses

Presupuesto de adjudicación: 372.320,63 €

Coordenadas: X: 579856.10  Y: 4069038.32 (WGS84) (30 S)

Galería de imágenes

Haga click sobre la imagen para ver la galería del proyecto a tamaño completo:

Imágenes del proyecto

 

Accesos directos